/
Buscar objetos (busca en los 190 primeros caracteres de la descripción del objeto)   Mostrar todos
Objeto Digital 2685
Recurso propio
  
Nombre del recurso:   MH-T4.png
Autor del recurso:  Memorias de Excavación Vol1
Información del recurso:  Matriz de Harris de la tumba T4

La matriz de Harris es un formalismo utilizado para visualizar el resultado del proceso de excavación por unidades estratigráficas naturales (UE), propuesto por Harris en 1979.
En esta propuesta una UE se concibe como un elemento con entidad física y significado cronológico propios.

Los datos relativos a las relaciones espaciales y cronológicas de las UE se toman de los registros de campo. Estos registros contienen la descripción de cada una de las UE identificas y las relaciones espaciales y temporales de las UE entre sí.

La matriz de Harris utilizada en el PAEC (Harris Matrix Composer 2.0) utiliza 4 tipos de símbolos:

- Para representar las UE: un cuadrado azul o un círculo verde, dependiendo del tipo de unidad.
- Para representar las relaciones entre unidades: flechas de color negro y trazo continuo y flechas de color gris y trazo discontinuo (trazadas entre los círculos y cuadrados del apartado anterior).

Los cuadrados de color azul representan unidades del tipo genérico depósito (como los depósitos de colmatación, o los derrumbes).

Los círculos de color verde representan unidades del tipo genérico corte, o interfaz, (como el corte de la fosa de enterramiento o el corte de los agujeros de un poste utilizado para reforzar la estructura de la tumba).

Las flechas negras representan las relaciones espaciales entre unidades y apuntan en la dirección en la que se asientan o apoyan las UE (pueden ser depósitos o cortes).

Las flechas de color gris claro y trazado discontinuo representan las relaciones cronológicas, - la sincronía se expresa con flechas de trazado horizontal, mientras que la relación entre unidades no contemporáneas se expresa con flechas de trazo vertical.

El sistema permite además agrupar en fases las unidades que forman un grupo temporalmente unitario, por ejemplo, la construcción de la tumba, la consiguiente colocación de los cuerpos y la colocación de la ofrenda a éstos. Dentro de una fase se pueden distinguir diferentes episodios como excavar la fosa de la tumba y entibar las paredes con postes.
Recurso propio
  
Nombre del recurso:   DE-T4.png
Autor del recurso:  Memorias de Excavación Vol1
Información del recurso:  "Diagrama Estratigráfico", DE, de la tumba T4.

Los DE se pueden considerar como una representación simplificada del proceso de excavación por unidades estratigráficas (UE).
En principio este formalismo es más sencillo que la "Matriz de Harris", ya que en estos diagramas solo se muestran las relaciones temporales entre fases, mientras que, en la "Matriz de Harris" se muestran las relaciones espaciales de proximidad y las relaciones temporales de sincronía y de secuencia.
Recurso propio
  
Nombre del recurso:   T4-IMG_8298.JPG
Autor del recurso:  Alfredo Fernandez-Valmayor
Información del recurso:  Panorámica de la fosa
Recurso propio
  
Nombre del recurso:   T4-SA12-261-390-1-2-400-468.png
Autor del recurso:  Julia Mayo y Miguel Angel Hervás
Información del recurso:  Sección acumulativa SA12. Tumba T4
Recurso propio
  
Nombre del recurso:   T4-SA11-261-390-1-2-464-476c.png
Autor del recurso:  Julia Mayo y Miguel Angel Hervás
Información del recurso:  Sección acumulativa SA11, tumba T4
Recurso propio
  
Nombre del recurso:   T4-SA10-280-411-430-1-450-54-55-420-461-261.png
Información del recurso:  Sección acumulativa SA10. Tumbas T4 y T8
Recurso propio
  
Nombre del recurso:   Conjunto osamentas T4.jpg
Autor del recurso:  Carlos Mayo
Información del recurso:  Osamentas de la T4.
Recurso Objeto Digital
  
2286
Autor del recurso:  Julia Mayo
Información del recurso:  Depósito de entierro de la tumba T4. Aglutina materiales y restos humanos. Se encontró debajo de la unidad UE259.
Recurso propio
  
Nombre del recurso:   T4-IMG_8473.JPG
Autor del recurso:  Julia Mayo
Información del recurso:  Croquis mostrando la distribución de cuerpos en la fosa realizado durante el proceso de identificación y exhumación.
Recurso propio
  
Nombre del recurso:   T4ofre2.JPG
Autor del recurso:  Alfredo Fernandez-Valmayor
Información del recurso:  Sobre el bloque de sedimento que cubría el entierro fue hallado una ofrenda de piezas de cerámica, algunas de ellas efigies representando rayas.
Recurso propio
  
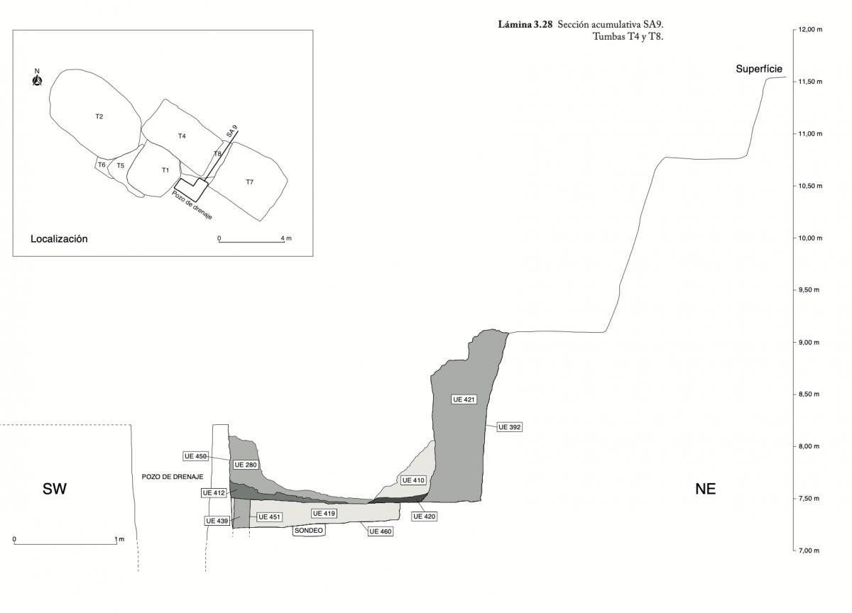
Nombre del recurso:   T4-Esquemas.zip/T4-T8-SA9.png
Autor del recurso:  Memorias de Excavación Vol1
Información del recurso:  Sección acumulativa SA9 de las tumbas T4 y T8
Recurso propio
  
Nombre del recurso:   T4-Esquemas.zip/T4-T8-SA8.png
Autor del recurso:  Memorias de Excavación Vol1
Información del recurso:  Sección acumulativa SA8 de las tumbas T4 y T8
Recurso propio
  
Nombre del recurso:   T4-Esquemas.zip/T4-FIII-L335-Ofr2.png
Autor del recurso:  Memorias de Excavación Vol1
Información del recurso:  Unidades estratigráficas de la Fase III-Ofrenda2 de la tumba T4.
Recurso propio
  
Nombre del recurso:   T4-Esquemas.zip/T4-FII-L334-derr-forj.png
Autor del recurso:  Memorias de Excavación Vol1
Información del recurso:  Unidades estratigráficas de la Fase II - Derrumbe del forjado de la tumba T4.
Recurso propio
  
Nombre del recurso:   T4-Esquemas.zip/T4-FI-L333-entierro.png
Autor del recurso:  Memorias de Excavación Vol1
Información del recurso:  Fase I - Entierro de la tumba T4
Recurso propio
  
Nombre del recurso:   T4-Esquemas.zip/T4-FI-l332-cons.png
Autor del recurso:  Memorias de Excavación Vol1
Información del recurso:  Unidades estratigráficas de la Fase I-Construcción de la tumba T4.
Recurso propio
  
Nombre del recurso:   Figura 3.64 3.110. UE392, UE450 y UE460 y agujeros de postes (8) (MAH).JPG
Autor del recurso:  Memorias de Excavación Vol1
Información del recurso:  Fosa y agujeros de poste de la tumba T4 y T8 (en primer plano).
Objeto Digital 2685
/